Caswell 
Available in Traditional Full Log or Hybrid Timber Frame
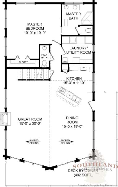
Home Specifications
Square Feet: 2212
First Floor: 1672
Bedrooms: 3
Second Floor: 540
Bathrooms: 3.5
Width: 30'
Stories: 2
Depth: 56'
Request Pricing or Have a Question:
The Caswell log home plan