Cocke 
Available in Traditional Full Log or Hybrid Timber Frame
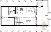
Home Specifications
Square Feet: 1732
First Floor: 1284
Bedrooms: 2
Second Floor: 448
Bathrooms: 2.5
Width: 48'
Stories: 2
Depth: 26'
Request Pricing or Have a Question:
The Cocke log home plan