Legacy 
Available in Traditional Full Log or Hybrid Timber Frame
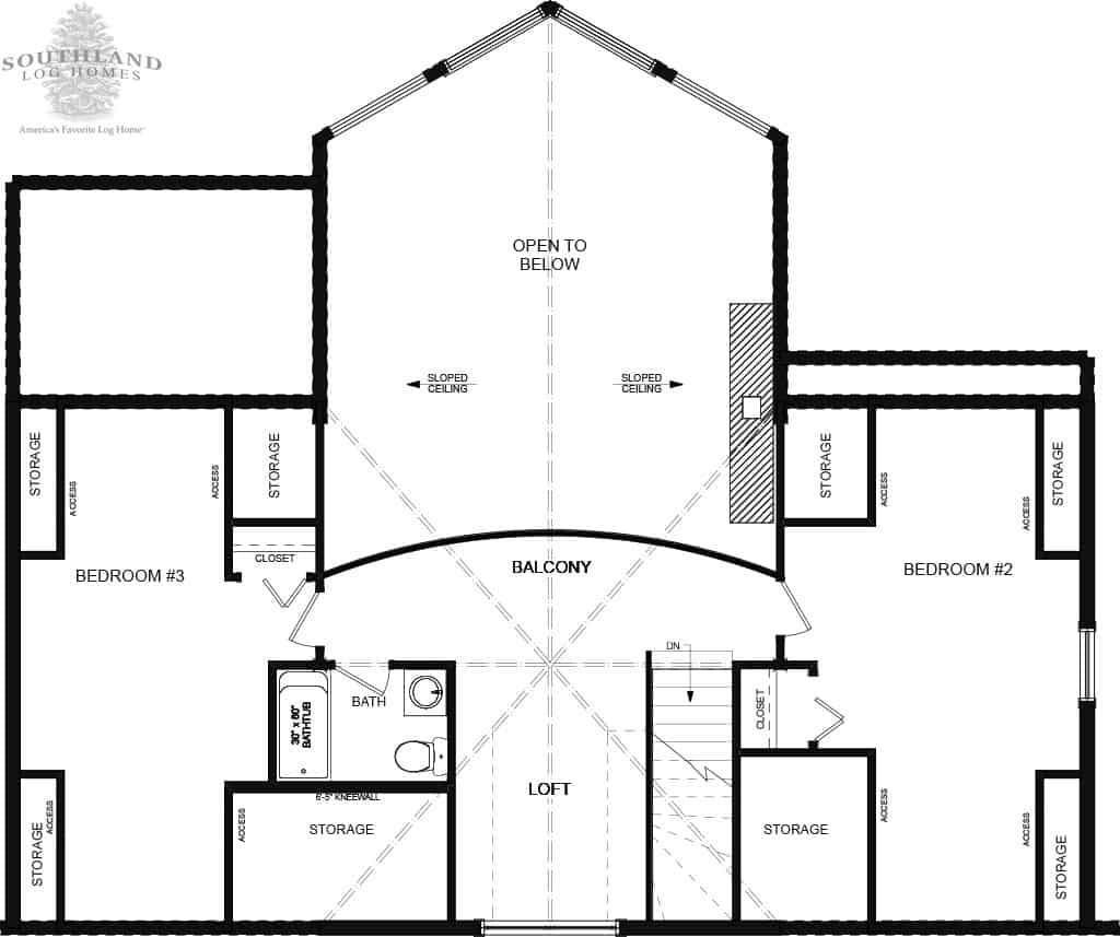
Home Specifications
Square Feet: 4354
First Floor: 1854
Bedrooms: 4
Second Floor: 797
Bathrooms: 3.5
Width: 63'
Stories: 2
Depth: 58'
Request Pricing or Have a Question:
The Legacy log home plan