Rockbridge 3 
Available in Traditional Full Log or Hybrid Timber Frame
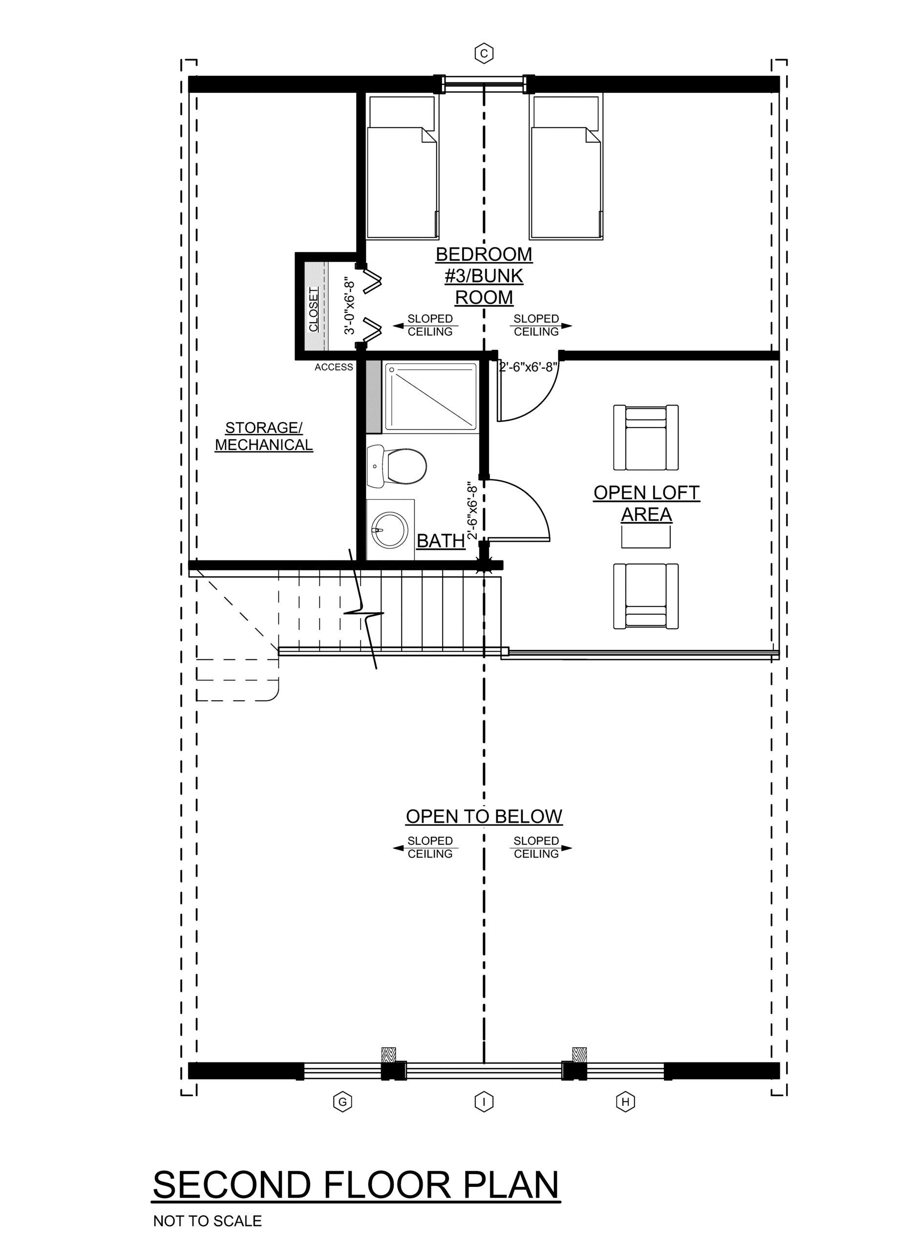
Home Specifications
Square Feet: 1840
First Floor: 1335
Bedrooms: 3
Second Floor: 505
Bathrooms: 2.5
Width: 44'
Stories: 1.5
Depth: 54'
Request Pricing or Have a Question:
The Rockbridge 3 log home plan