When you say the words “Dream Home,” the Rutherford from Southland Log Homes may be just what comes to mind. Its grand facade is commanding, yet charming, with lots of windows to let in natural light. The attached three-car garage will certainly come in handy too.
There’s no shortage of space once you step inside. The Master Suite comes equipped with large dual walk-in closets, two separate sinks with plenty of space, and a giant garden tub. The Great Room leads to the generous kitchen with an attached breakfast nook and a sunroom – the perfect place for the family to start the day. The study provides room for a quiet home office.
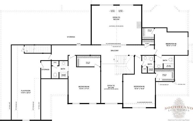
Upstairs you’ll find three bedrooms, each with its own bathroom, a playroom that would be a great retreat for the kids, and additional storage space.
At Southland we know that log home dreams come in all shapes and sizes – from the grand and spacious, to a small, cozy getaway in the woods. What is your log home dream?


